山科区の不動産|KYODOハウジング > 物件カタログ > 山科団地C棟 > 物件詳細
駅まで徒歩11分と十分通勤可能な範囲に物件があり静かに暮らしやすい物件です!最寄りのスーパー「マツヤスーパー 山科三条店」まで488mです!107m歩けば山科郵便局があります!南向きの物件はこちらです!京都市山科区で共同土地 KYODOハウジングオススメの不動産をお求めなら、当社へお気軽にお問い合わせください!ご要望やご質問なども承っております(^^)











(※元利均等方式 金利5.00%まで ※返済年数5~50年まで入力できます)
(※ボーナスは年2回で計算しています。1000万円まで入力できます)
(※物件購入時、その他諸費用が発生する場合がございます)
| 所在地 | 京都府京都市山科区西野様子見町1-15 | ||
|---|---|---|---|
| 交通 | |||
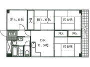
| 間取り/詳細 |
2LDK LDK 15.0帖 1室/洋室 8.0帖 1室/洋室 6.5帖 1室 |
||
| 専有面積/バルコニー面積 | 58.96㎡/10.70㎡ | ルーフバルコニー面積/テラス面積/専用庭面積 | -/-/- |
| 価格 | 1,199万円 | ||
| 管理費 | 5,000円 | ||
| 修繕積立金 | 12,000円 | 修繕積立基金 | - |
| 権利金 | - | 駐車場/月額料金 | 空無/- |
| 土地の敷金/保証金 | -/- | 借地料/借地期間 | -/- |
| 土地権利 | 所有権 | 国土法届出要否 | 不要 |
| 用途地域 | 第一種中高層住居専用 | 地勢 | 平坦 |
| 種別/構造 | 中古マンション/鉄骨鉄筋コンクリート | 向き | 南 |
| 築年月(築年数) | 1973年 6月 (築52年) | ||
| 所在階/階建 | 8階/10階建 | 棟総戸数/販売戸数 | 210戸/- |
| 管理組合有無 | 有 | 管理形態 | 自主管理 |
| 管理員の勤務形態 | 日勤 | 管理会社 | - |
| 取引態様 | 仲介 | 現況 | 空家 |
| 引渡し | 相談 | 建築確認番号 | - |
| 物件番号 | 88716253 | 取引条件の有効期限 | 2025年12月21日 |
| リフォーム |
2025年1月 キッチン 浴室 トイレ 壁 床 全室 |
||
| 設備条件 |
|
||
| 備考 | 2025年1月室内全面リノベーション実(間取り変更/システムキッチン・ユニットバス・洗面台・トイレ・給湯器・室内建具交換/全室クロス・フローリング・CF張替え/ハウスクリーニング 他) | ||
| 取扱会社 |
|
||
| QRコード |
このQRコードを読み取ることで、スマホでも物件情報を確認できます。 |
||
※地図上に表示される物件の位置は付近住所に所在することを表すものであり、実際の物件所在地とは異なる場合がございます。
京都市山科区の町名から探す