山科区の不動産|KYODOハウジング > 物件カタログ > 山科団地B棟 > 物件詳細
徒歩でも駅へのアクセスが可能な、10分に立地する物件です◎買い物もフレスコ西野店が近く(438m)にあるので楽々◎自転車をお持ちでも安心の駐輪場付きの物件です◎京都市山科区で交通の利便性高い暮らしをするなら、京都地下鉄東西線東野周辺でしたら駅の利用がしやすく便利です◎こだわりやご要望などございましたら、お気軽にお問い合わせください(*´ω`*)











(※元利均等方式 金利5.00%まで ※返済年数5~50年まで入力できます)
(※ボーナスは年2回で計算しています。1000万円まで入力できます)
(※物件購入時、その他諸費用が発生する場合がございます)
| 所在地 | 京都府京都市山科区西野阿芸沢町1-7 | ||
|---|---|---|---|
| 交通 | |||
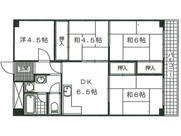
| 間取り/詳細 |
3K K 4.0帖 1室/和室 6.0帖 3室 |
||
| 専有面積/バルコニー面積 | 51.98㎡/8.00㎡ | ルーフバルコニー面積/テラス面積/専用庭面積 | -/-/- |
| 価格 | 880万円 | ||
| 管理費 | 5,000円 | ||
| 修繕積立金 | 10,000円 | 修繕積立基金 | - |
| 権利金 | - | 駐車場/月額料金 | 空無/- |
| 土地の敷金/保証金 | -/- | 借地料/借地期間 | -/- |
| 土地権利 | 所有権 | 国土法届出要否 | 不要 |
| 用途地域 | 第一種中高層住居専用 | 地勢 | 平坦 |
| 種別/構造 | 中古マンション/鉄骨鉄筋コンクリート | 向き | 南 |
| 築年月(築年数) | 1973年 2月 (築53年) | ||
| 所在階/階建 | 5階/10階建 | 棟総戸数/販売戸数 | 250戸/- |
| 管理組合有無 | 有 | 管理形態 | 自主管理 |
| 管理員の勤務形態 | 日勤 | 管理会社 | - |
| 取引態様 | 仲介 | 現況 | 空家 |
| 引渡し | 相談 | 建築確認番号 | - |
| 物件番号 | 42811027 | 取引条件の有効期限 | 2026年02月28日 |
| リフォーム |
2026年1月 壁 床 |
||
| 設備条件 |
|
||
| 備考 | 2026年1月一部リフォーム実施(クロス・畳表・CF張替え/ハウスクリーニング) | ||
| 取扱会社 |
|
||
| QRコード |
このQRコードを読み取ることで、スマホでも物件情報を確認できます。 |
||
※地図上に表示される物件の位置は付近住所に所在することを表すものであり、実際の物件所在地とは異なる場合がございます。
山科団地B棟に関するこだわり条件から探す
京都市山科区の町名から探す