山科区の不動産|KYODOハウジング > 物件カタログ > 山科区東野狐藪町 中古店舗付き住宅 > 物件詳細
駅から徒歩9分圏内に立地しています♪日々のお買い物に便利なスーパー「クスリのアオキ山科西店」まで532m♪徒歩5分の場所に京都市立山階南小学校があります♪道路向かいが東野公園と東野北公園です♪南東角地なので、陽当りや風通しもよく、開放感があり、快適に過ごすことができます♪不動産探しでわからないことはございませんか♪知識と経験豊富なスタッフが、物件探しを親切丁寧にサポートいたします(*^_^*)










(※元利均等方式 金利5.00%まで ※返済年数5~50年まで入力できます)
(※ボーナスは年2回で計算しています。1000万円まで入力できます)
(※物件購入時、その他諸費用が発生する場合がございます)
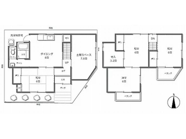
| 所在地 | 京都府京都市山科区東野狐藪町 | ||
|---|---|---|---|
| 交通 | |||
| 坪数/面積/土地面積 | 26.15坪 / 86.46㎡ / 70.74㎡ | バルコニー面積 | - |
| 価格/坪単価 | 1,980万円 / 75.72万円 | 管理費 | - |
| 修繕積立金 | - | 駐車場/月額料金 | 無 / - |
| 土地権利 | 所有権 | 国土法届出要否 | 不要 |
| 用途地域 | 準工業 | 地目/地勢 | 宅地 / 平坦 |
| 種別/構造 | 店付住宅 / 木造 | 向き | - |
| 築年月(築年数) | 1979年 3月 (築47年) | ||
| 所在階/階建 | - / 2階建 | 棟総戸数/販売戸数 | - / - |
| 管理組合有無 | - | 管理形態 | - |
| 管理員の勤務形態 | - | 管理会社 | - |
| 取引態様 | 仲介 | 現況/引渡し | 空家/相談 |
| 物件番号 | 101190712 | 取引条件の有効期限 | 2026年03月02日 |
| 設備条件 |
|
||
| 備考 | 売主は契約不適合責任を負いません | ||
| 取扱会社 |
|
||
| QRコード |
このQRコードを読み取ることで、スマホでも物件情報を確認できます。 |
||
※地図上に表示される物件の位置は付近住所に所在することを表すものであり、実際の物件所在地とは異なる場合がございます。
京都市山科区の町名から探す