山科区の不動産|KYODOハウジング > 物件カタログ > 山科団地A棟 > 物件詳細
物件から徒歩10分に駅のある、駅近の物件です☆3沿線利用可能ですので、交通利便性が高いです☆日々のお買い物に便利なフレスコ西野店まで472mです☆こだわり条件の定番☆コンビニ「ローソン 山科西野店」が近く(165m)にあります☆共同土地 KYODOハウジングはお客様が満足して頂けるよう、全力でサポートいたします☆こだわりやご要望などあれば、ご連絡をお待ちしております(^_^)











(※元利均等方式 金利5.00%まで ※返済年数5~50年まで入力できます)
(※ボーナスは年2回で計算しています。1000万円まで入力できます)
(※物件購入時、その他諸費用が発生する場合がございます)
| 所在地 | 京都府京都市山科区西野阿芸沢町1-12 | ||
|---|---|---|---|
| 交通 | |||
| 間取り/詳細 |
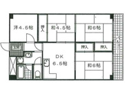
2LDK LDK 10.0帖 1室/洋室 6.0帖 2室 |
||
| 専有面積/バルコニー面積 | 51.98㎡/8.36㎡ | ルーフバルコニー面積/テラス面積/専用庭面積 | -/-/- |
| 価格 | 980万円 | ||
| 管理費 | 5,000円 | ||
| 修繕積立金 | 10,000円 | 修繕積立基金 | - |
| 権利金 | - | 駐車場/月額料金 | 空無/- |
| 土地の敷金/保証金 | -/- | 借地料/借地期間 | -/- |
| 土地権利 | 所有権 | 国土法届出要否 | 不要 |
| 用途地域 | 第一種中高層住居専用 | 地勢 | 平坦 |
| 種別/構造 | 中古マンション/鉄骨鉄筋コンクリート | 向き | 南 |
| 築年月(築年数) | 1973年 2月 (築53年) | ||
| 所在階/階建 | 8階/10階建 | 棟総戸数/販売戸数 | 420戸/- |
| 管理組合有無 | 有 | 管理形態 | 自主管理 |
| 管理員の勤務形態 | 日勤 | 管理会社 | - |
| 取引態様 | 仲介 | 現況 | 空家 |
| 引渡し | 相談 | 建築確認番号 | - |
| 物件番号 | 99202799 | 取引条件の有効期限 | 2026年03月24日 |
| リフォーム |
2025年11月 キッチン 浴室 トイレ 壁 床 全室 |
||
| 設備条件 |
|
||
| 備考 | 2025年11月室内全面リフォーム実施(システムキッチン・ユニットバス・洗面台・トイレ・室内建具交換/全室クロス・フローリング・CF張替え/ハウスクリーニング 他) | ||
| 取扱会社 |
|
||
| QRコード |
このQRコードを読み取ることで、スマホでも物件情報を確認できます。 |
||
※地図上に表示される物件の位置は付近住所に所在することを表すものであり、実際の物件所在地とは異なる場合がございます。
山科団地A棟に関するこだわり条件から探す
京都市山科区の町名から探す