山科区の不動産|KYODOハウジング > 物件カタログ > 山科区音羽初田町 新築戸建 > 物件詳細
新しい土地の新築戸建て物件で、心機一転、新生活を始めませんか♪駅まで徒歩11分でアクセス可能です♪3沿線利用可能ですので、利便性が高いです♪小学校が十分通学できる範囲にあります♪京都市立音羽川小学校が徒歩7分です♪不動産購入を考えているなら、当社にお任せください♪シングル、カップル、ファミリーなど、条件に合わせた不動産をご用意しております(*´ω`*)











(※元利均等方式 金利5.00%まで ※返済年数5~50年まで入力できます)
(※ボーナスは年2回で計算しています。1000万円まで入力できます)
(※物件購入時、その他諸費用が発生する場合がございます)
| 所在地 | 京都府京都市山科区音羽初田町 | ||
|---|---|---|---|
| 交通 | |||
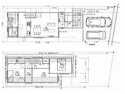
| 間取り/詳細 |
3LDK/ LDK 16.5帖 1室/洋室 4.7帖 1室/洋室 6.7帖 1室/洋室 6.0帖 1室 |
建物面積(坪数) | 99.22㎡(30.01坪) |
| 価格 | 4,380万円 | ||
| 駐車場/月額料金 | 有(2台)/- | ||
| 土地の敷金/保証金 | -/- | 借地料/借地期間 | -/- |
| 土地権利 | 所有権 | 土地面積(坪数) | 74.34㎡(22.48坪) |
| 傾斜地部分面積 | - | 路地状敷地 | - |
| 私道負担面積/セットバック | -/無 | 高圧線下面積 | - |
| 地目/地勢 | 宅地/平坦 | 接道状況 | 一方(南 私道 6.0m 間口 8.6m) |
| 建ぺい率/容積率 | 60%/200% | 用途地域 | 第一種中高層住居専用 |
| 都市計画 | 市街化区域 | 種別/構造 | 新築一戸建/木造 |
| 階建 | 3階建 | 築年月(築年数) | 2025年 10月 (新築) |
| 総区画数/販売区画数 | -/- | 向き | - |
| 現況 | 完成済み | その他の法令上の制限 | 高度地区/準防火地域 |
| 取引態様/引渡時期 | 仲介/相談 | 建築確認番号 | 第KS125-6120-51222号 |
| 物件番号 | 95990515 | 取引条件の有効期限 | 2026年01月30日 |
| 設備条件 |
|
||
| 取扱会社 |
|
||
| QRコード |
このQRコードを読み取ることで、スマホでも物件情報を確認できます。 |
||
※地図上に表示される物件の位置は付近住所に所在することを表すものであり、実際の物件所在地とは異なる場合がございます。
山科区音羽初田町 新築戸建に関するこだわり条件から探す
京都市山科区の町名から探す