山科区の不動産|KYODOハウジング > 物件カタログ > 山科区勧修寺東北出町 中古作業場付き事務所 > 物件詳細
作業場・倉庫付きの2階建て事務所♪駅まで歩いてアクセスできる、徒歩5分圏内の物件です☆車は3台程度駐車可です☆コンビニ「ローソン 山科外環小野店」が379m以内にある物件です(*´ω`*)










(※元利均等方式 金利5.00%まで ※返済年数5~50年まで入力できます)
(※ボーナスは年2回で計算しています。1000万円まで入力できます)
(※物件購入時、その他諸費用が発生する場合がございます)
| 所在地 | 京都府京都市山科区勧修寺東北出町 | ||
|---|---|---|---|
| 交通 | |||
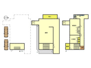
| 坪数/面積/土地面積 | 23.18坪/76.64㎡/180.00㎡ | バルコニー面積 | - |
| 価格/坪単価 | 2,680万円/115.62万円 | 管理費 | - |
| 修繕積立金 | - | 駐車場/月額料金 | 有(3台)/- |
| 土地権利 | 所有権 | 国土法届出要否 | 不要 |
| 用途地域 | 第二種中高層住居専用 | 地目/地勢 | 宅地/高台 |
| 種別/構造 | 事務所/木造 | 向き | - |
| 築年月(築年数) | 1992年 12月 (築33年) | ||
| 所在階/階建 | -/2階建 | 棟総戸数/販売戸数 | -/- |
| 管理組合有無 | - | 管理形態 | - |
| 管理員の勤務形態 | - | 管理会社 | - |
| 取引態様 | 仲介 | 現況/引渡し | 居住中/相談 |
| 物件番号 | 94101663 | 取引条件の有効期限 | 2026年02月05日 |
| 設備条件 |
|
||
| 備考 | 現状自動車工場です 売主は瑕疵担保責任を負いません | ||
| 取扱会社 |
|
||
| QRコード |
このQRコードを読み取ることで、スマホでも物件情報を確認できます。 |
||
※地図上に表示される物件の位置は付近住所に所在することを表すものであり、実際の物件所在地とは異なる場合がございます。